物件詳細情報
| 交通 |
東急田園都市線 / 桜新町駅 徒歩10分 |
| その他交通 |
- |
| 所在地 |
東京都世田谷区新町1丁目 |
| 物件種目 |
貸マンション |
| 賃料 |
9.7万円 |
管理費等 |
12,000円 |
| 敷金 / 保証金 |
1ヶ月/なし |
礼金 |
1ヶ月 |
| 敷引 |
- |
保証金償却 |
- |
| その他一時金 |
退去時エアコンクリーニング:13,200円、 除菌消臭:8,800円、 退去時ハウスクリーニング:48,400円 |
保険等 |
加入要 / 2年間 20,000円 |
| 維持費等 |
FAST ASSIST24:1,100円/月 |
| 建物名・部屋番号 |
クレイシア桜新町 701 |
| 設備 |
モニタ付オートロック 宅配BOX バス・トイレ別室 室内洗濯機置場 クローゼット オートロック ディンプルキー ダブルロックドア 防犯カメラ 2口コンロ グリル エレベーター 浴室乾燥機 洗濯機置場 エアコン バルコニー インターネット使用料無料 温水洗浄便座 トイレ |
| 備考 |
賃貸保証等:加入要 初回契約時:40%、更新時:10,000円、その他プラン有※新日本信用保証の場合口座振替手数料216円(税込)/月、ジャ ックスの場合口座振替手数料無し バルコニー:あり 写真はイメージです(床やクロスの色が変更となる可能性があります) ※365日以内の解約の場合、短期解約違約金 賃料(管理費込)1ヶ月分 ※民泊利用禁止 ※ペット飼育不可 ※インターネットはギガプライズのみ利用可 写真はイメージです(床やクロスの色が変更となる可能性があります) ※365日以内の解約の場合、短期解約違約金 賃料(管理費込)1ヶ月分 ※民泊利用禁止 ※ペット飼育不可 ※インターネットはギガプライズのみ利用可
|
| エネルギー消費性能 |
- |
断熱性能 |
- |
| 目安光熱費 |
- |
|
|
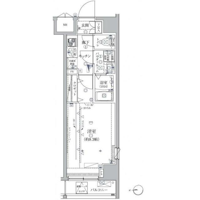
| 間取り |
1K(洋室8.3・K2.5) |
主要採光面 |
西 |
| 専有面積 |
25.66㎡ |
階建/階 |
8階建/7階 |
| 築年月 |
2014年5月(築11年10ヶ月) |
建物構造 |
RC |
| 総戸数 |
34戸 |
|
|
| 駐車場 |
- |
バイク置き場 |
なし |
| 駐輪場 |
なし |
ペット |
- |
| 契約期間 |
2年 |
現況 |
空家 |
| 条件等 |
- |
入居可能時期 |
相談 |
| 更新料 |
新賃料 1ヶ月 |
|
|
| 物件番号 |
1191130114 |
|
|
| 情報公開日 |
2025/12/15 |
次回更新予定日 |
2026/02/15 |
※「-」と表示されている項目については、情報提供会社にご確認ください。
情報提供会社
(有)アイホームズ
- 交通:
- JR山手線/池袋 徒歩4分
- 住所:
- 東京都豊島区東池袋1丁目36-3 池袋陽光ハイツ
- TEL:
- 03-6812-1738
- FAX:
- 03-6812-1739
- 所属団体など:
| (公社)東京都宅地建物取引業協会会員 |
| (公社)首都圏不動産公正取引協議会加盟 |
- 取引態様:
- 仲介
- 免許番号:
- 東京都知事免許(4)第89933号
メールでお問い合わせ